Imóvel Selecionado
-
Area: 376 m² -
Sala: 2 -
Banheiro: 2 -
Garagem: 2
DESCRIÇÃO
ACESSO E CIRCUNVIZINHANÇA
Cada uma das entradas principais será servida por uma loja, sendo a Loja 1 localizada com acesso pela Avenida Rebouças e a Loja 3 na Rua Melo Alves. A Avenida Rebouças é uma via movimentada, com grande fluxo de veículos, visibilidade, possui mão dupla e é responsável pela ligação da Av. Paulista com a Mg. Pinheiros.
Ao lado do acesso pela Avenida Rebouças existe um estacionamento disponível para clientes. De acordo com estudo realizado pelo Mackenzie, circulam em média, pela Av. Rebouças, cerca de 65 mil carros por dia.
O metrô Oscar Freire se encontra a 250 metros do empreendimento (cerca de 4 minutos). Este também é uma das principais linhas de metrô de São Paulo, com cerca de 22.130 pessoas circulando diariamente, de acordo com Via Quatro, em novembro de 2022.
CARACTERÍSTICAS DO CONDOMÍNIO
As lojas fazem parte de um condomínio composto por 2 subsolos de garagem com 24 vagas e uma torre com 22 pavimentos com 289 apartamentos.
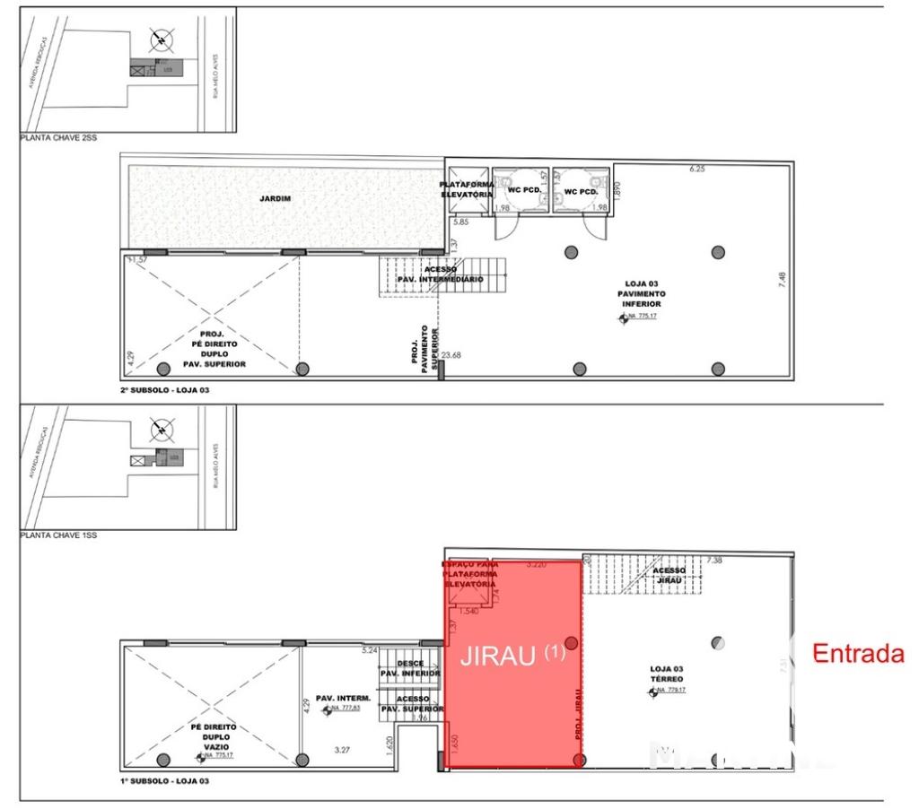
ESPECIFICAÇÕES DAS LOJAS
Descrição Loja 1 Loja 3
Área 376,48 m2 (sendo 79,72 m2 de jirau) 349,83 m2 (sendo 39,21 m2 de jirau)
Andares 1 1
Fachada 7,9 metros 7,5 metros
Piso Entregue em cimento liso desempenado Entregue em cimento liso desempenado
Teto Laje de concreto aparente Laje de concreto aparente
Banheiro 2 banheiros entregues com piso em porcelanato, paredes com pintura látex acrílico na cor branco, teto com pintura látex acrílico na cor branco e louças e metais Deca ou de desempenho equivalente
Vagas 2 vagas para utilitários de uso compartilhado entre as lojas, localizadas no 1º subsolo
CARACTERÍSTICAS
LOCALIZAÇÃO
Financiamento de imóveis




